
Den akustiske ydeevne i et kontorrum, en skole eller en offentlig bygning bidrager til vores velvære, da dårlig akustisk komfort kan påvirke sundhed, kommunikation, sikkerhed, produktivitet og læring.
Dette panel-system leverer fremragende akustisk ydeevne, komfort og et æstetisk behageligt miljø.
Med dette panel-systemet kan der opnås en absorptionsværdi (αw) 0,75 afhængigt af loft og panelkonfiguration.
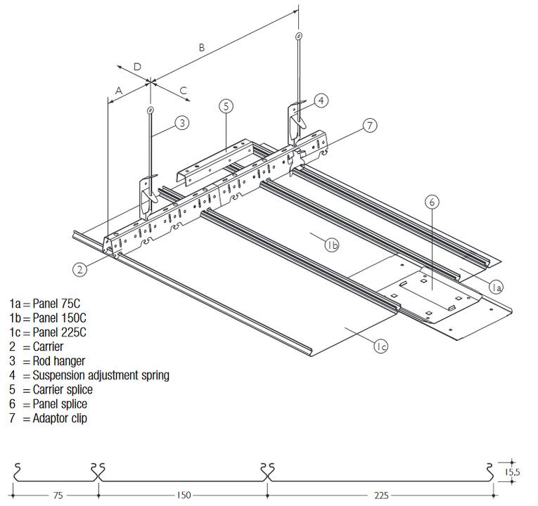
Med lukkede lineær paneler kan man opnå et lukket glat loft, leveret i tre forskellige bredder i unikt design, eller kombineret med hinanden skabe et fint mønster
Sortimentet af metallofter er tilgængeligt i en række standardfarver, der passer til de fleste applikationer. For yderligere oplysninger om lofttyper og de specielle overflader og farveområder, der er tilgængelige for specifikke projekter, bedes du kontakte vores salgskontor.
Dette loftsystem er velegnet til alle byggesektorer, herunder virksomheder, Transport (lufthavne, metro, bus og togstationer) detailhandel, fritid, offentlige rum, restaurationer, sundhedspleje, uddannelse og bolig.
Kontakt os for at diskutere dine ønsker.
Med dette indvendige loftsystem i aluminium kan man kombinerer tre bredder af paneler, det adskiller sig fra andre systemer ved deres skråkantede kanter, som når de installeres, giver et lukket, glat udseende. Allen tre bredder af panelerne kan fastgøres til en universal bæreskinne. Panelerne samles ved hjælp af en panellaske.